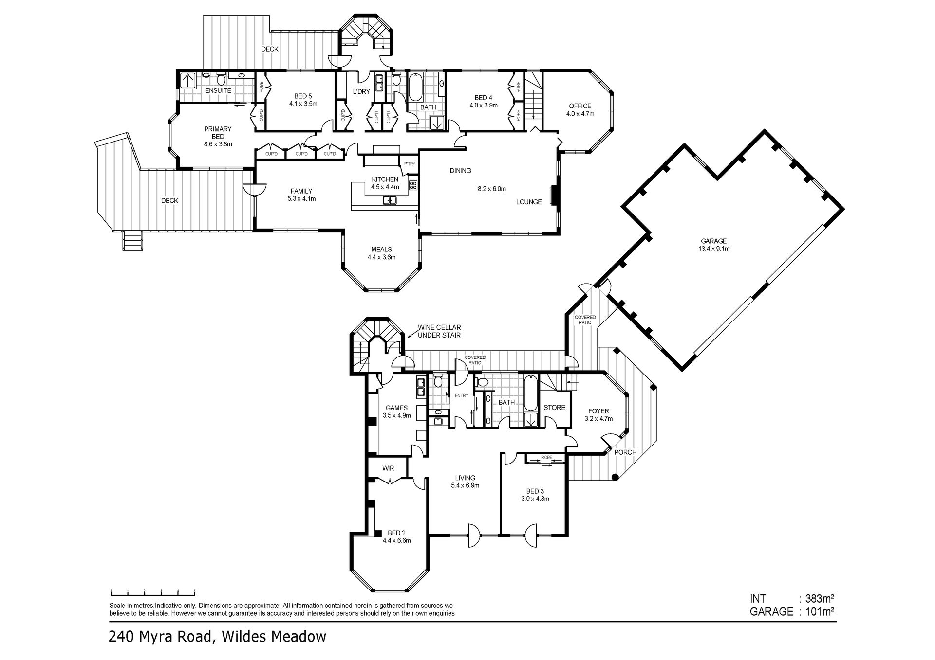
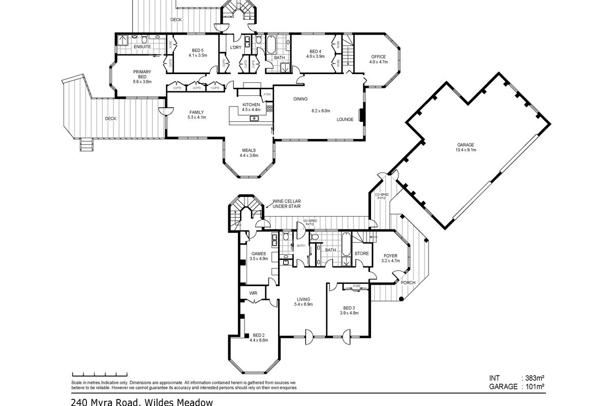
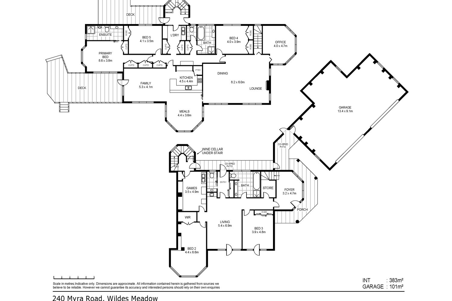
A sublime location, a prized Wildes Meadow address, approx. 12.5 fertile acres with uninterrupted northerly views across the Fitzroy Falls Reservoir.
A substantial architect designed and master built home with 9ft. ceilings, double glazing, formal lounge/dining room with roaring open fire, family room with gas log fire, ceiling and underfloor heating, study/library.
Separate studio with bathroom and kitchen set in magnificent established park-like grounds with specimen and native trees, a wisteria walk and the most incredible view over the water.
Inspection by appointment.
Show More





































































