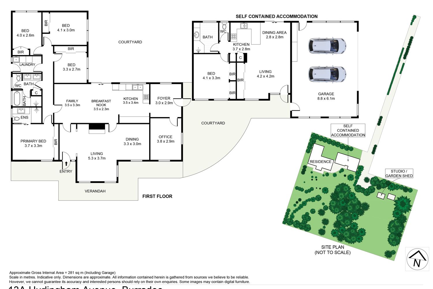
Nestled on a vast 5,200sqm private tree surrounded garden ensures absolute privacy. This Colonial style residence represents a lifestyle retreat of tranquility and serenity, there is fantastic flexibility of living with this property and includes four bedrooms plus a self-contained flat or multi-generation accommodation with its own private entrance.
The flowing floor plan provides formal living and dining with cosy gas log fire and vaulted ceiling, casual living opens to the sun filled courtyard. Kitchen with gas and electrical appliances. A generous home office with NBN fibre.
The self-contained flat boasts a large living dining room, kitchen, bedroom with built in robes and bathroom.
Attached oversize double garage, garden studio, and workshop.
Other features include 10ft ceilings, ducted reverse cycle air conditioning, wrap around verandah and much more.
Beyond the home, the gardens are a private wonderland - designed to bloom and evolve through the seasons.
Discerning buyers will value the prime location, just moments from top schools including Oxley College and Chevalier College. Enjoy easy access to the Burradoo Bike Track and only minutes to vibrant Bowral CBD.
Show More











